巴厘島建設經驗
在巴厘島建造別墅是很多人的夢想。美麗的巴厘島文化、印度洋溫暖海水沿岸的白色和黑色沙灘以及家門口高聳的火山和叢林景觀,巴厘島是名副其實的天堂,任何人都可以在這裡度過一年或一生。
消息!巴厘島別墅出售並長期出租!單擊此處閱讀全部內容,或發送電子郵件[電子郵件受保護]
擁有自己的別墅是讓“眾神之島”生活更加美好的唯一途徑——將您的生活成本降低到“現實世界”的一小部分,鎖定巴厘島不斷上漲的房地產和別墅成本,並在建造過程中輕鬆定制您天堂般的家,讓您過上想要的生活。只需一點點積蓄和約 9 個月的時間,您也可以在東南亞最受歡迎的島嶼之一擁有一棟別墅。
不幸的是,沒有什麼是容易的,並且了解如何在巴厘島建造別墅可能很困難。從作為外國人購買土地,到正確設計自己的房屋,再到巴厘島獨特的建設過程,在不懂語言、不了解島嶼的情況下盲目地完成這個過程並不容易。
到目前為止。
在本系列文章中,我將深入分享您在巴厘島管理定制別墅建設所需了解的一切,並儘可能獲得最高的質量、最低的成本和最佳的結果。
請繼續閱讀,了解我在巴厘島建造房屋的經歷,以及您需要了解的有關建造房屋過程的所有信息。
計劃在巴厘島購買土地或建造房產?在查看我們的完整巴厘島房地產指南之前不要開始。
![]()
本巴厘島別墅建造指南的內容
- 第 5 步:規劃您的別墅建造並繪製平面圖
- 了解您需要的施工計劃和測試的類型
- 平均規劃文件成本
- 為什麼這些計劃很重要?
- 我規劃別墅的經驗 + 避免災難的一些技巧
- 您在設計過程中需要雇用和諮詢的專業人員
- 別墅設計中需要考慮的元素列表
- 第六步:正確許可建造您的別墅
![]()
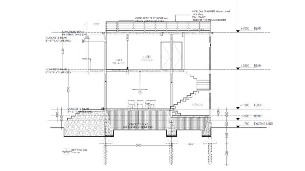
不想購買巴厘島別墅,而是建造自己的別墅?單擊此處即可購買全套建築、施工、工程和工程量清單計劃,僅需 99 美元



從長遠來看,巴厘島別墅的完整國際級標准設計流程花費了 9 個月的會議時間和 4000 美元。您建造同樣美麗的工業風格別墅的所有計劃都可以由您完成,而價格和時間只是我所付出的一小部分。
![]()
我建造巴厘島別墅的經歷:火的審判
2020 年,當世界陷入新冠疫情的深淵時,我很幸運地“被困”在巴厘島波西米亞衝浪村坎古 (Canggu)。當時,對於那些稍微社交、數字游牧者或任何喜歡海灘、熱帶衝浪村的遠程工作者來說,它可以說是世界上最好的地方。由於巴厘島遊客數量有限,島上的感覺和環境感覺就像日曆倒退了50年,同時又保持著21世紀的精華。
倉古巴都博隆的海灘沙子覆蓋的街道空蕩盪、安靜且適合步行,因為在疫情期間的兩年裡,只有衝浪者和少數背包客留下來擠滿了村莊。在當前的大流行中倖存下來的咖啡店和餐館的價格足夠便宜,可以容納減薪和失業的遠程工人,同時確保當地人有足夠的錢生存。最重要的是,每個人都認識每個人。每天的“我可以點菜嗎”變成了“很高興再次見到你”,帶著巴厘島的魅力。
推薦閱讀:如何解決《最後生還者》在 PC 上構建著色器時卡住的問題
疫情期間,我在距印度洋 2 個街區的一間臥室閣樓裡度過了近兩年的時間,裡面裝滿了衝浪板,而且坎古的價格“非常便宜”,每月約 800 美元,我意識到我正在實現多年來一直追逐的夢想。
我還意識到,疫情最終會結束,隨著這一結束,人們將湧回長谷的巴都博隆和貝拉瓦,永遠改變這個曾經衝浪村莊的 DNA。我第一次聽說這個咖啡館林立的數字游牧天堂是在 2017 年,最終在 2018 年參觀過,並在那之後不久就上癮了。巴厘島當地人熱情好客的魅力、衝浪勝地的完美融合(因為該地區最初是由外國人和巴厘島人在稻田中開闢的衝浪村),以及數字游牧民和遠程工作者的熱情氛圍。我意識到,隨著旅遊業的回歸、巴厘島邊境的開放以及渴望旅行的度假者的大量湧入,蒼古和巴厘島將永遠不會再像現在這樣。曾經。
2020 年 12 月,當地旅遊業開始開放,數千名來自雅加達的度假者來到小小的巴厘島慶祝新年,這證實了我所知道的宜居性將會發生的確切變化。
2020 年 12 月的那一刻,我開始在巴厘島尋找一個能夠保留“大流行蒼古”所有優點的地點,以建造一個家,並作為旅行之間的基地。
在接下來的 2.5 年裡,我在巴厘島尋找房地產機會,參觀了數百塊土地——在坎古、佩雷雷南、塞塞赫、塞馬吉,進入塔巴南,探索葉甘加、帕蘇特和巴圖里特,進入羅維納、艾湄灣周圍的北部地區,從西德曼東進入巴厘島的下部地區——尋找巴厘島最保守的秘密。

經過幾個月的探索,我發現了一個“新倉谷”。巴厘島海濱小村莊,仍然保留著巴厘島中心、稻田和叢林景觀,以及溫馨的衝浪場所。一家小而美妙的咖啡館和另一家提供美味燒烤和晚餐的餐廳點綴在我潛在的土地和一片空曠的海灘之間一英里長的道路上,那裡有熱情的海浪。
我找到了。巴厘島最好的地方,還有我在加利福尼亞的家鄉所懷念的美食、氛圍和自然。我找到了。
峇里島.
我的巴厘島小片土地。
在接下來的兩年裡,我完成了在巴厘島研究和購買土地的過程,設計了一棟兼具功能性和舒適性的別墅,能夠承受巴厘島的大雨和烈日,獲得了巴厘島和印度尼西亞政府的適當許可和許可,並管理了我未來的家(我心愛的混凝土盒子)的建設,所有這一切都在印度尼西亞人非常有限的情況下進行,也沒有什麼值得信賴的幫助。那是一次冒險。
從破土動工、在稻田粘土上挖第一個洞,到在通往我現在家的路上鋪設最後一塊磚。

這是 100% 值得的,因為我在世界旅行之間的天堂和家的基地現在已經完成。
這個懷舊的小故事有什麼意義呢?
當談到作為外國人在巴厘島建造別墅時,我去過那裡,經歷過,並且在另一邊很高興。
我經歷了在巴厘島尋找土地、購買、設計我的夢想家園以及管理巴厘島別墅建設的過程。更令人印象深刻的是,我在沒有開發人員、代理和翻譯的情況下偶然完成了這個任務。在此過程中,我看到了數百塊土地,會見了巴厘島數百名房地產和建築專業人士——房地產經紀人、律師、承包商、建築師、工程師和建築工人。我親自參觀了 100 多座正在進行中的建築,了解巴厘島常見的建築問題、實踐和流程。
計劃在巴厘島建造或購買房產?在查看我們的完整巴厘島房地產指南之前不要開始。

在本系列文章中,我將分享我一路上學到的一切,我希望知道的一切,以及我給其他人建造別墅的建議,這些建議為他們節省了數千美元和很多頭痛。
![]()
巴厘島別墅系列的下一個
- 第 5 步:規劃您的別墅建造並繪製平面圖
- 了解您需要的施工計劃和測試的類型
- 平均規劃文件成本
- 為什麼這些計劃很重要?
- 我規劃別墅的經驗 + 避免災難的一些技巧
- 您在設計過程中需要雇用和諮詢的專業人員
- 別墅設計中需要考慮的元素列表
- 第六步:正確許可建造您的別墅
![]()
(返回目錄)
![]()
搬到巴厘島系列中的其他精彩文章
- 搬到巴厘島:完整指南
- 巴厘島數字游牧簽證:完整指南
- 長谷 73 家很棒的咖啡館
- 巴厘島最佳聯合辦公空間
- 長谷景點
- 吉利特拉旺安島的最佳日落點
- 在巴厘島買房
- 在巴厘島購買土地
- 巴厘島的建築
- 在巴厘島建別墅需要多少錢?
- 巴厘島別墅設計規劃流程
其他偉大的游牧民族、旅行和僑民生活方式文章
- 移居馬來西亞:完整指南
- 馬來西亞數字游牧簽證終極指南
- 泰國免簽證要點:前往泰國之前需要了解的信息
- 成功游牧者中的 51 份最佳數字游牧工作
- 9 條史詩般的南美洲背包旅行路線
- 背包環遊世界……一次兩週
- 地理套利適合您嗎?作為游牧民族,以更便宜的方式生活得更好的終極指南
![]()
